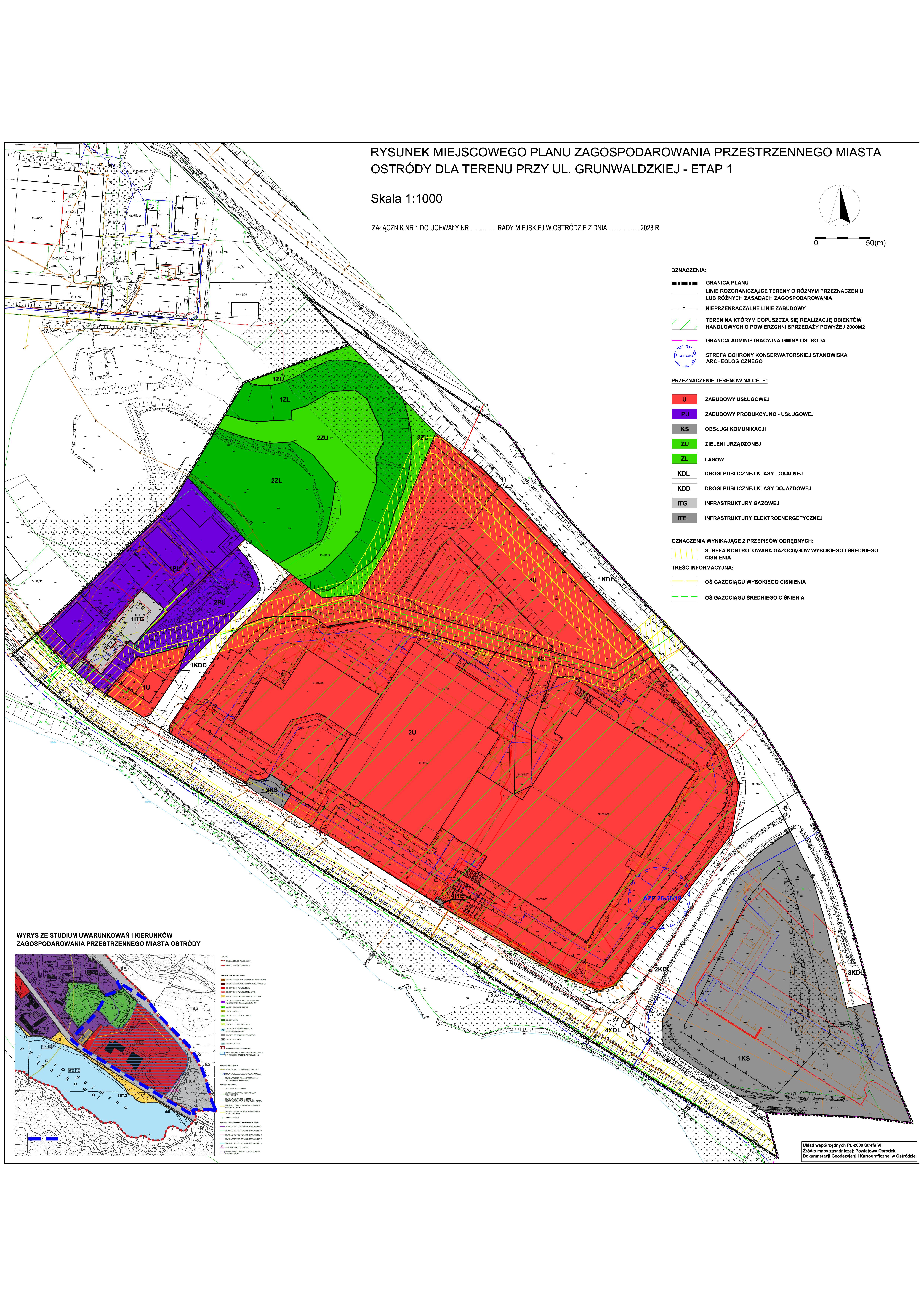
Uchwała Nr LXXVI/455/2023 Rady Miejskiej w Ostródzie z dnia 29 listopada 2023 r. w sprawie uchwalenia miejscowego planu zagospodarowania przestrzennego miasta Ostródy dla terenu przy ul. Grunwaldzkiej – etap 1.
Biuletyn Informacji Publicznej Gmina Miejska Ostróda
Uchwała Nr LXXVI/455/2023 Rady Miejskiej w Ostródzie z dnia 29 listopada 2023 r. w sprawie uchwalenia miejscowego planu zagospodarowania przestrzennego miasta Ostródy dla terenu przy ul. Grunwaldzkiej – etap 1.
Numer aktuLXXVI/455/2023
Rodzaj aktuUchwały Rady Miejskiej
Data podjęcia
Data wejścia w życieWchodzi w życie po upływie 14 dni po ogłoszeniu w dzienniku urzędowym