Wersja nieobowiązująca z dnia

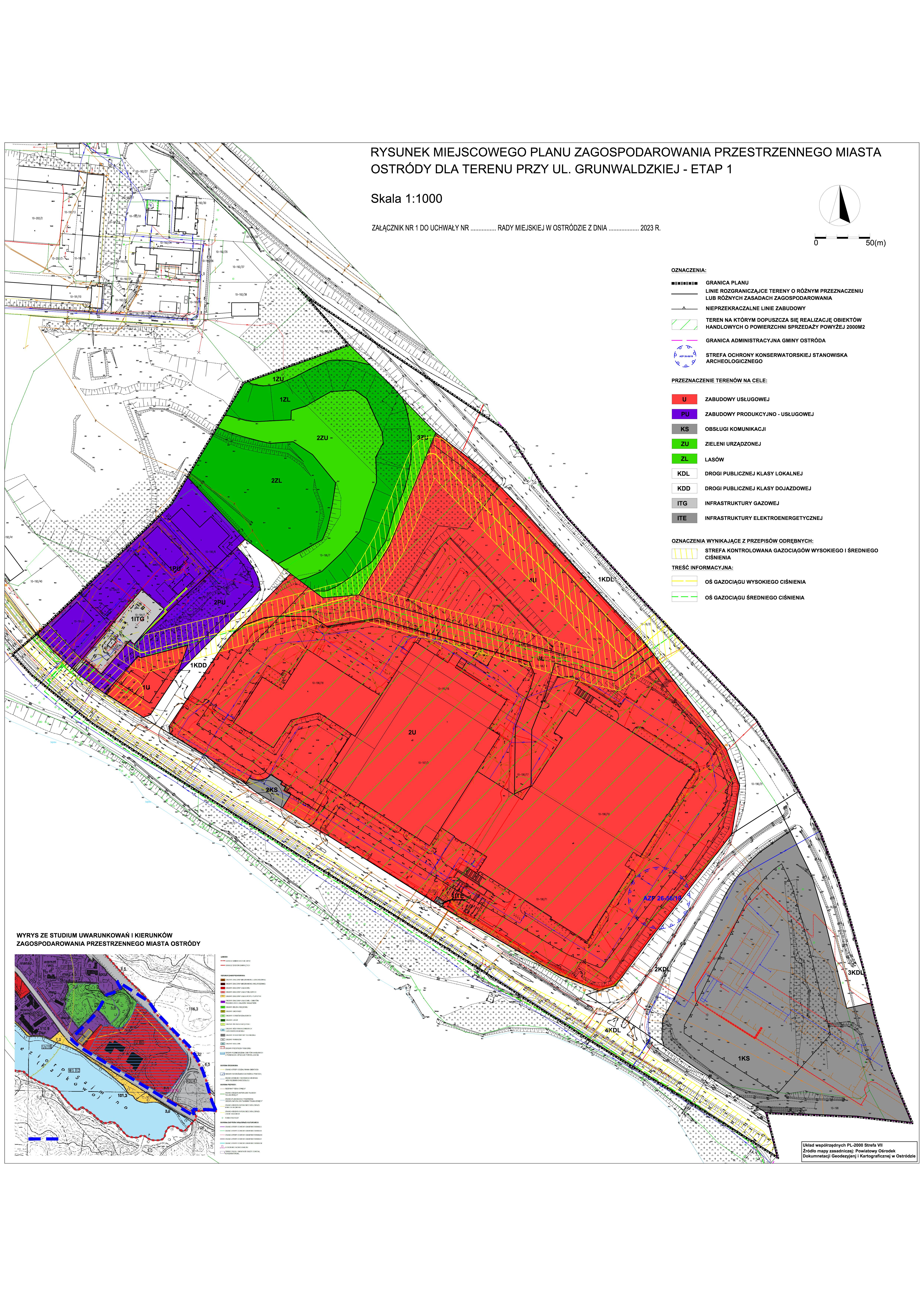
Uchwała Nr LXXVI/455/2023 Rady Miejskiej w Ostródzie z dnia 29 listopada 2023 r. w sprawie uchwalenia miejscowego planu zagospodarowania przestrzennego miasta Ostródy dla terenu przy ul. Grunwaldzkiej – etap 1.

Załączniki

Treść aktu

Załączniki

Wersja nieobowiązująca

Strona może zawierać nieaktualną treść i załączniki. Możesz pozostać na tej stronie lub przejść na wersję z obowiązującą zawartością.