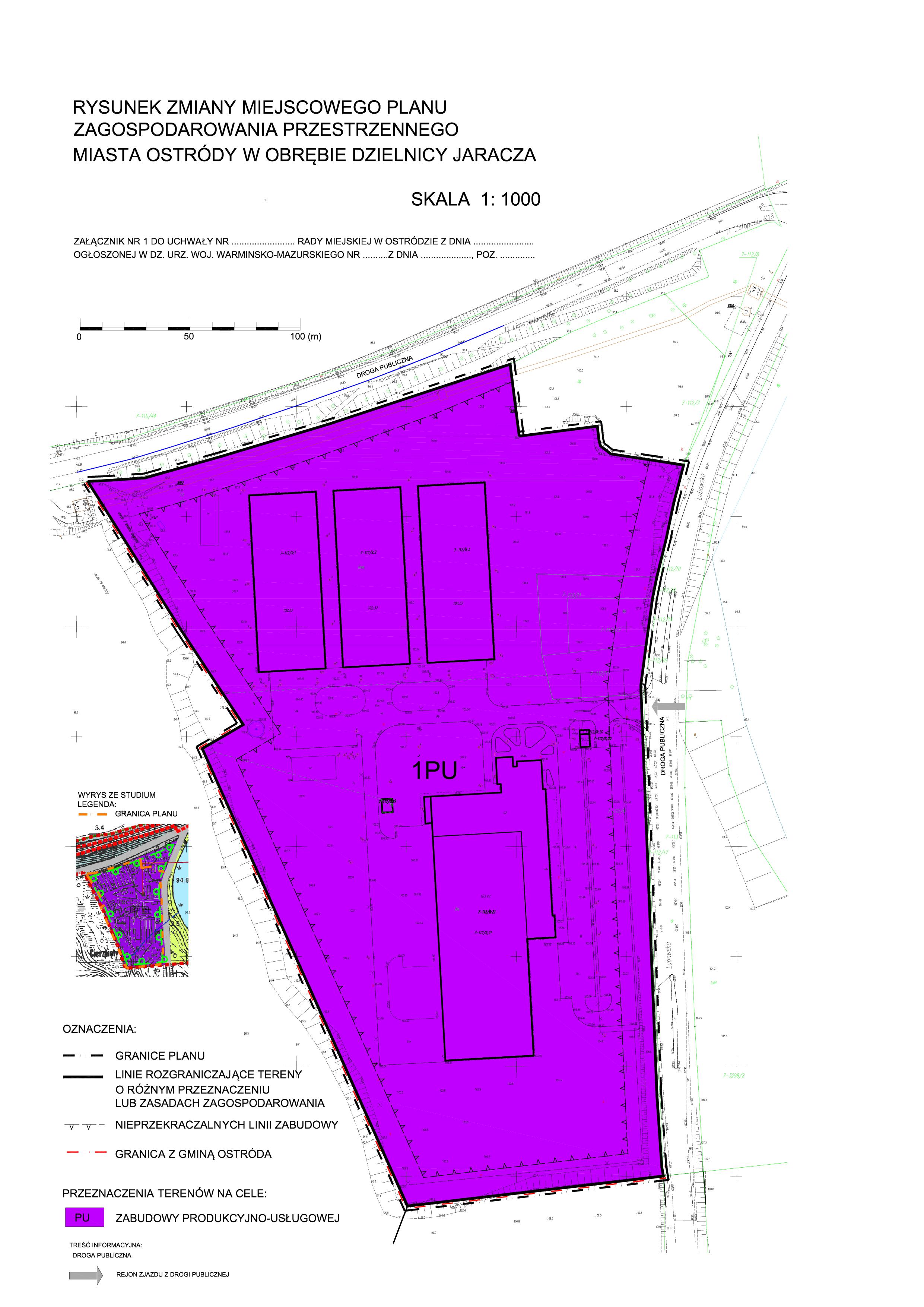
Uchwała Nr LI/367/2018 Rady Miejskiej w Ostródzie z dnia 12 września 2018 r. w sprawie uchwalenia zmiany miejscowego planu zagospodarowania przestrzennego miasta Ostródy w obrębie dzielnicy Jaracza
Biuletyn Informacji Publicznej Gmina Miejska Ostróda
Uchwała Nr LI/367/2018 Rady Miejskiej w Ostródzie z dnia 12 września 2018 r. w sprawie uchwalenia zmiany miejscowego planu zagospodarowania przestrzennego miasta Ostródy w obrębie dzielnicy Jaracza
Numer aktuLI/367/2018
Rodzaj aktuUchwały Rady Miejskiej
Data podjęcia
Data wejścia w życiepo upływie 14 dni od dnia ogłoszenia w Dzienniku Urzędowym Województwa Warmińsko – Mazurskiego