Wersja nieobowiązująca z dnia

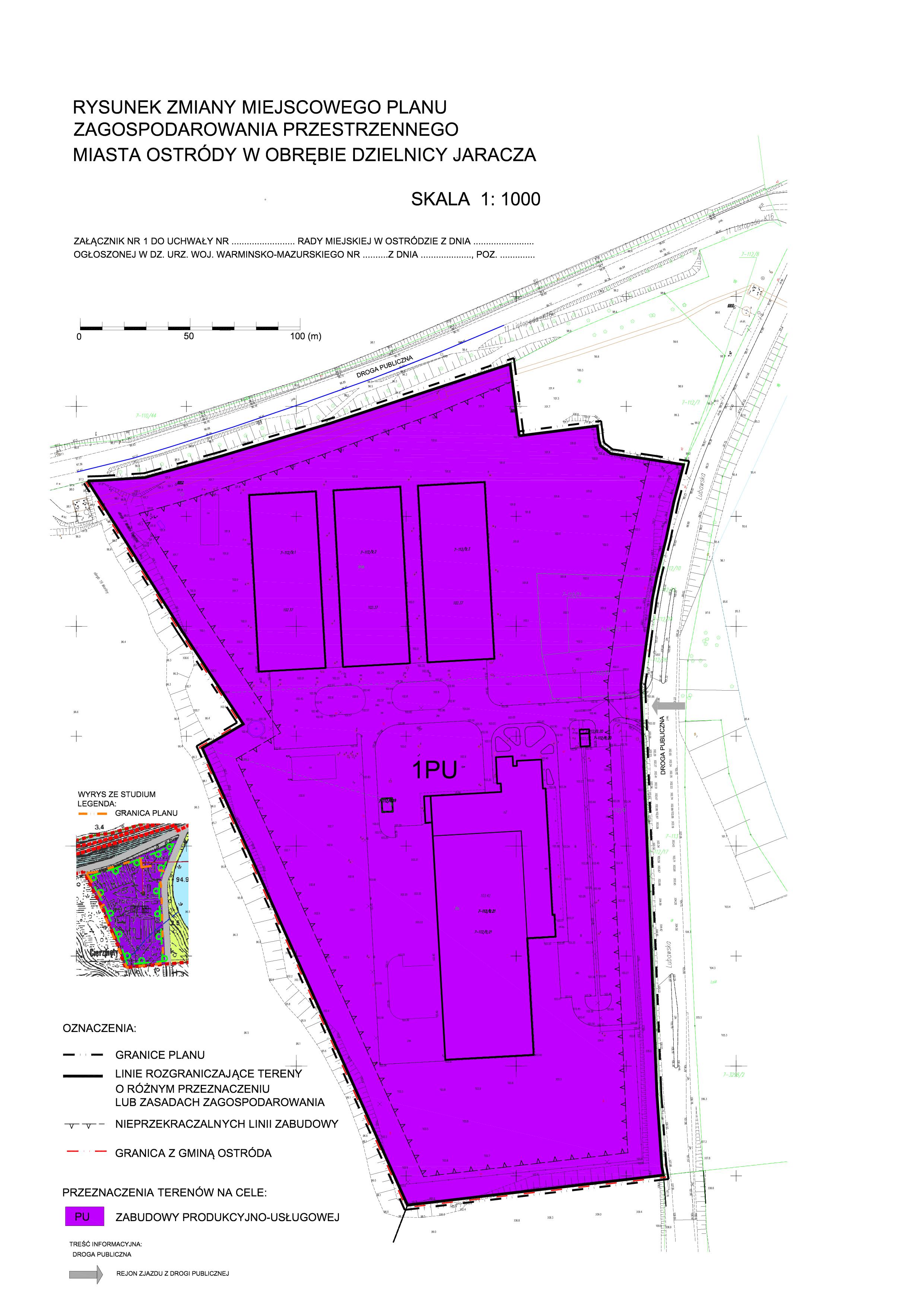
Uchwała Nr LI/367/2018 Rady Miejskiej w Ostródzie z dnia 12 września 2018 r. w sprawie uchwalenia zmiany miejscowego planu zagospodarowania przestrzennego miasta Ostródy w obrębie dzielnicy Jaracza

Załączniki

Treść aktu

Załączniki

Wersja nieobowiązująca

Strona może zawierać nieaktualną treść i załączniki. Możesz pozostać na tej stronie lub przejść na wersję z obowiązującą zawartością.