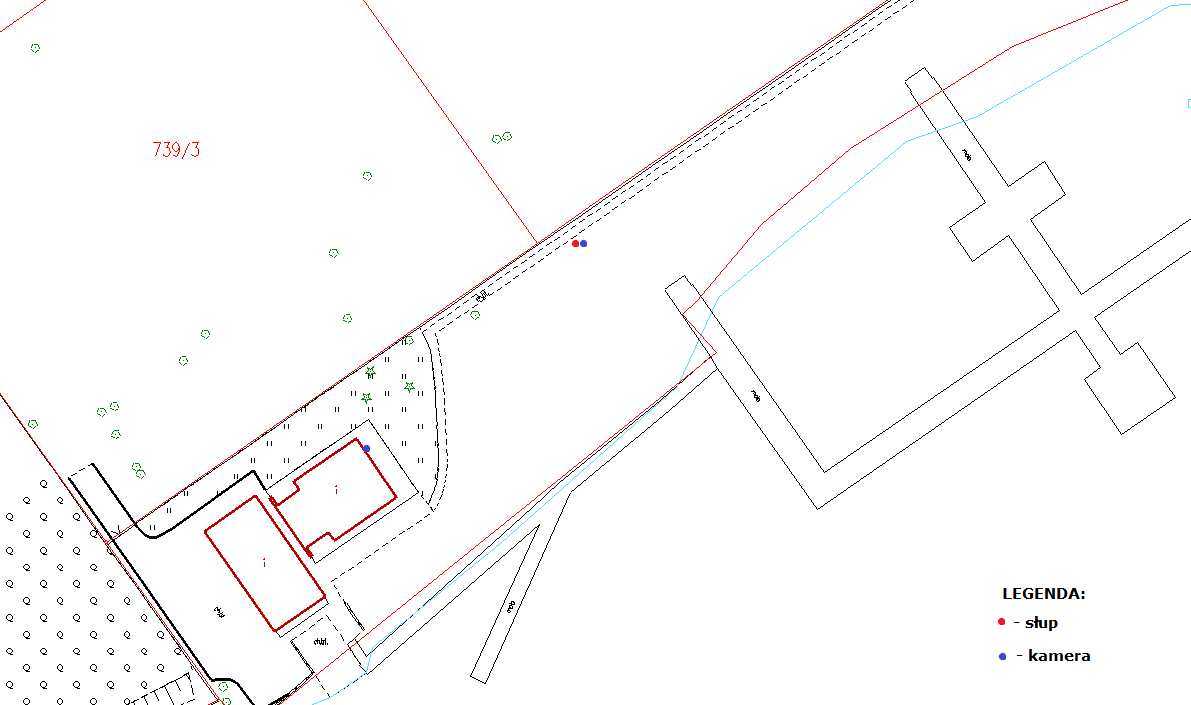
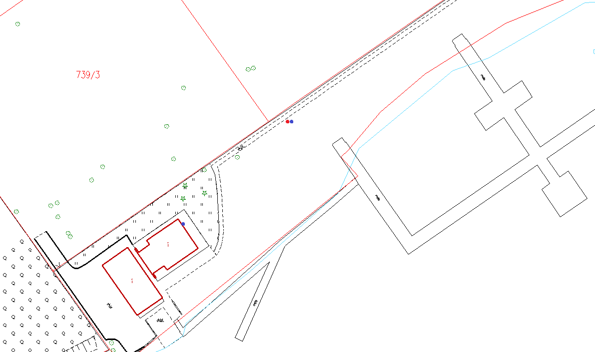
Dostawa wraz z montażem monitoringu plaż przy ul. Turystycznej oraz ul. Piaskowej w ramach projektu "Podniesienie jakości przybrzeżnej infrastruktury rekreacyjnej w Ostródzie"
Biuletyn Informacji Publicznej Gmina Miejska Ostróda
Dostawa wraz z montażem monitoringu plaż przy ul. Turystycznej oraz ul. Piaskowej w ramach projektu "Podniesienie jakości przybrzeżnej infrastruktury rekreacyjnej w Ostródzie"
Numer zamówieniaMPR.271.189.2019
StatusW trakcie
Rodzaj zamówieniaUsługi
Tryb zamówienia
Wyłączone z obowiązku stosowania ustawy