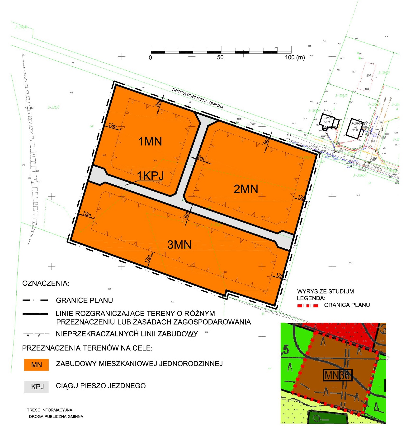
Uchwała Nr VIII/60/2019 Rady Miejskiej w Ostródzie z dnia 8 kwietnia 2019 r. w sprawie uchwalenia zmiany miejscowego planu zagospodarowania przestrzennego miasta Ostródy w obrębie osiedli Plebiscytowego i Ostrów
Biuletyn Informacji Publicznej Gmina Miejska Ostróda
Uchwała Nr VIII/60/2019 Rady Miejskiej w Ostródzie z dnia 8 kwietnia 2019 r. w sprawie uchwalenia zmiany miejscowego planu zagospodarowania przestrzennego miasta Ostródy w obrębie osiedli Plebiscytowego i Ostrów
Numer aktuVIII/60/2019
Rodzaj aktuUchwały Rady Miejskiej
Data podjęcia
Data wejścia w życiepo 14 dniach od daty jej ogłoszenia w Dzienniku Urzędowym Województwa Warmińsko-Mazurskiego