Wersja archiwalna z dnia 26-06-2023 12:28:41
Drukuj
OGŁOSZENIE o wyłożeniu do publicznego wglądu projektu miejscowego planu zagospodarowania przestrzennego miasta Ostródy dla terenu przy ul. Grunwaldzkiej – etap 1
Załączniki
Ogłoszenie
format: pdf , rozmiar: 64.2 KB , data dodania:
15-06-2023 11:42:04
obwieszczenie o wyłożeniu projektu mpzp ul. Grunwaldzka w Ostródzie - etap 1
format: pdf , rozmiar: 65.02 KB , data dodania:
26-06-2023 12:28:41
FORMULARZ- wnioski i uwagi
format: pdf , rozmiar: 51.66 KB , data dodania:
26-06-2023 12:28:41
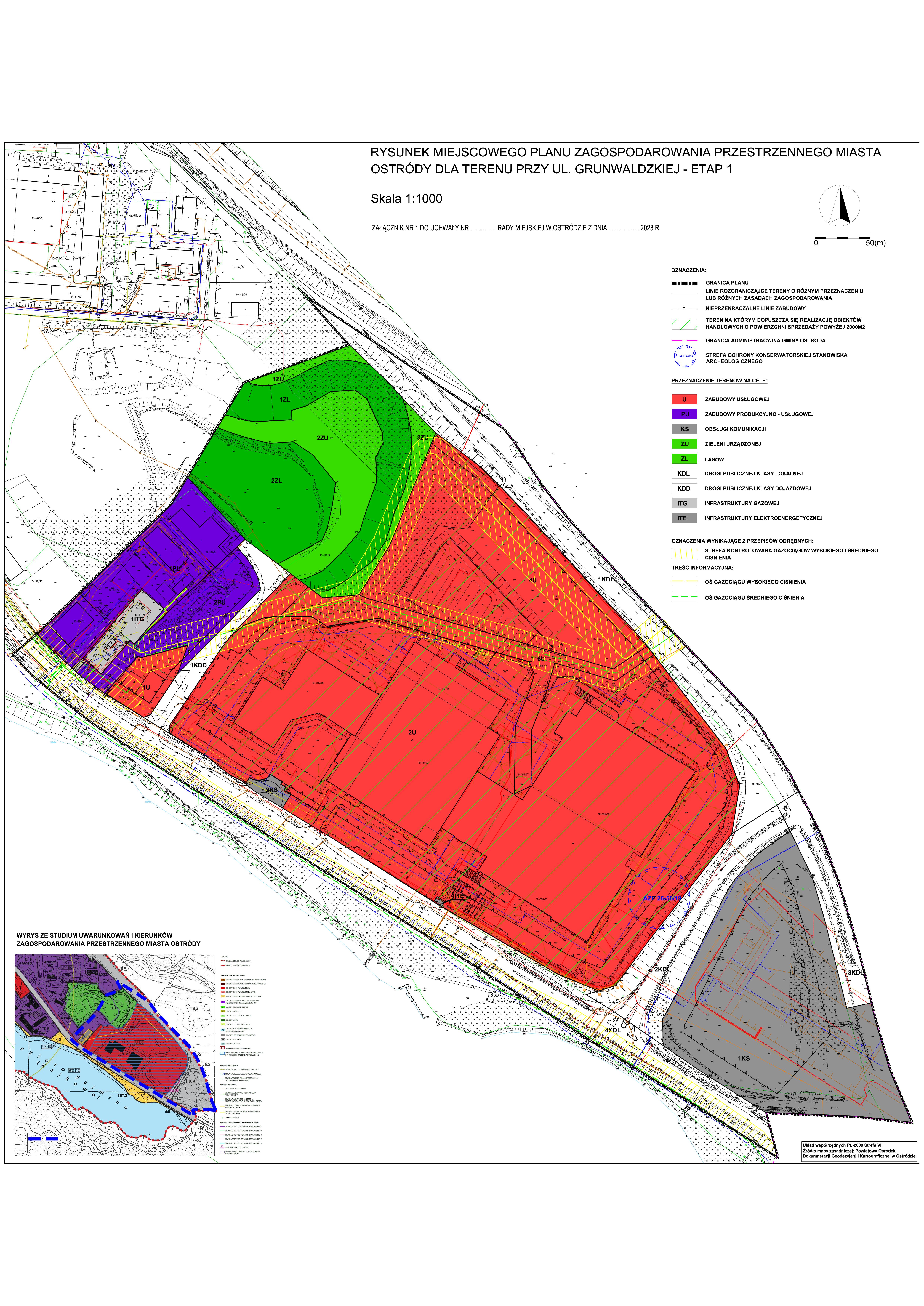
MPZP ul Grunwaldzka - etap 1 [rysunek].pdf
format: image/jpeg , rozmiar: 4.21 MB , data dodania:
26-06-2023 12:28:41
MPZP ul Grunwaldzka - etap 1 [tekst]
format: pdf , rozmiar: 77.64 KB , data dodania:
26-06-2023 12:28:41
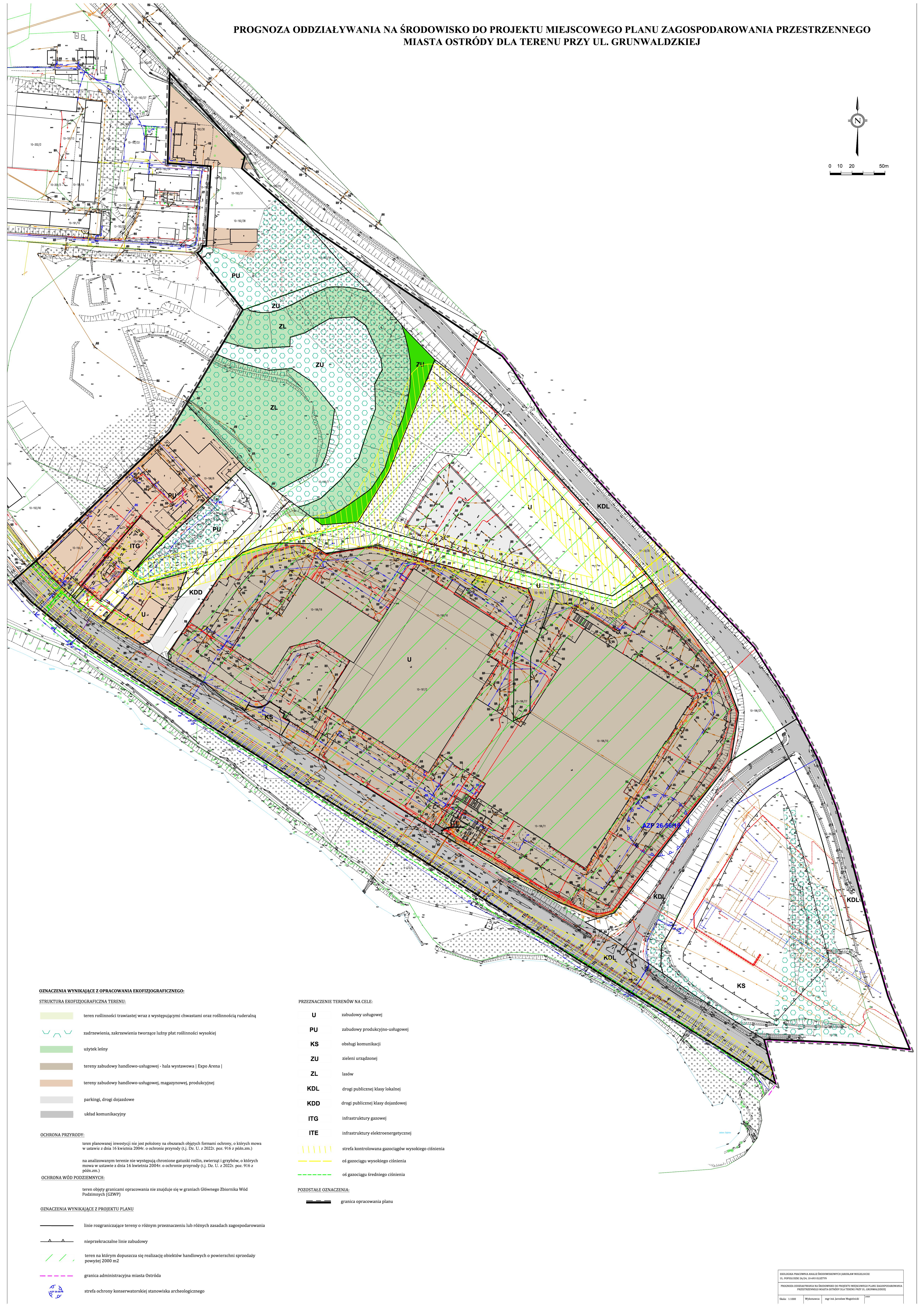
Prognoza oddziaływania na środowisko ul Grunwaldzka [rysunek]
format: image/jpeg , rozmiar: 4.38 MB , data dodania:
26-06-2023 12:28:41
Prognoza oddziaływania na środowisko ul Grunwaldzka [tekst]
format: pdf , rozmiar: 1011.89 KB , data dodania:
26-06-2023 12:28:41
Metryka
Czas publikacji informacji: 15-06-2023 11:42:04
Osoba, która wytworzyła informację: Nowicka Małgorzata
Osoba, która odpowiada za treść: Michalak Zbigniew - Burmistrz Miasta Ostróda
Osoba, która opublikowała informację: Dorota Kubacka
Czas zmiany informacji: 26-06-2023 12:28:41
Osoba, która zmieniła informację: Dorota Kubacka
Liczba wyświetleń informacji: 1053
Wersja archiwalna
Strona może zawierać nieaktualną treść i załączniki. Możesz pozostać na tej stronie lub przejść na stronę główną.