Wersja archiwalna z dnia 26-06-2023 12:30:58
Drukuj
OGŁOSZENIE o wyłożeniu do publicznego wglądu projektu miejscowego planu zagospodarowania przestrzennego miasta Ostródy dla terenu przy ul. Grunwaldzkiej – etap 1
Załączniki
Ogłoszenie
format: pdf , rozmiar: 64.2 KB , data dodania:
15-06-2023 11:40:53
obwieszczenie o wyłożeniu projektu mpzp ul. Grunwaldzka w Ostródzie - etap 1
format: pdf , rozmiar: 65.02 KB , data dodania:
26-06-2023 12:30:58
FORMULARZ- wnioski i uwagi
format: pdf , rozmiar: 51.66 KB , data dodania:
26-06-2023 12:30:58
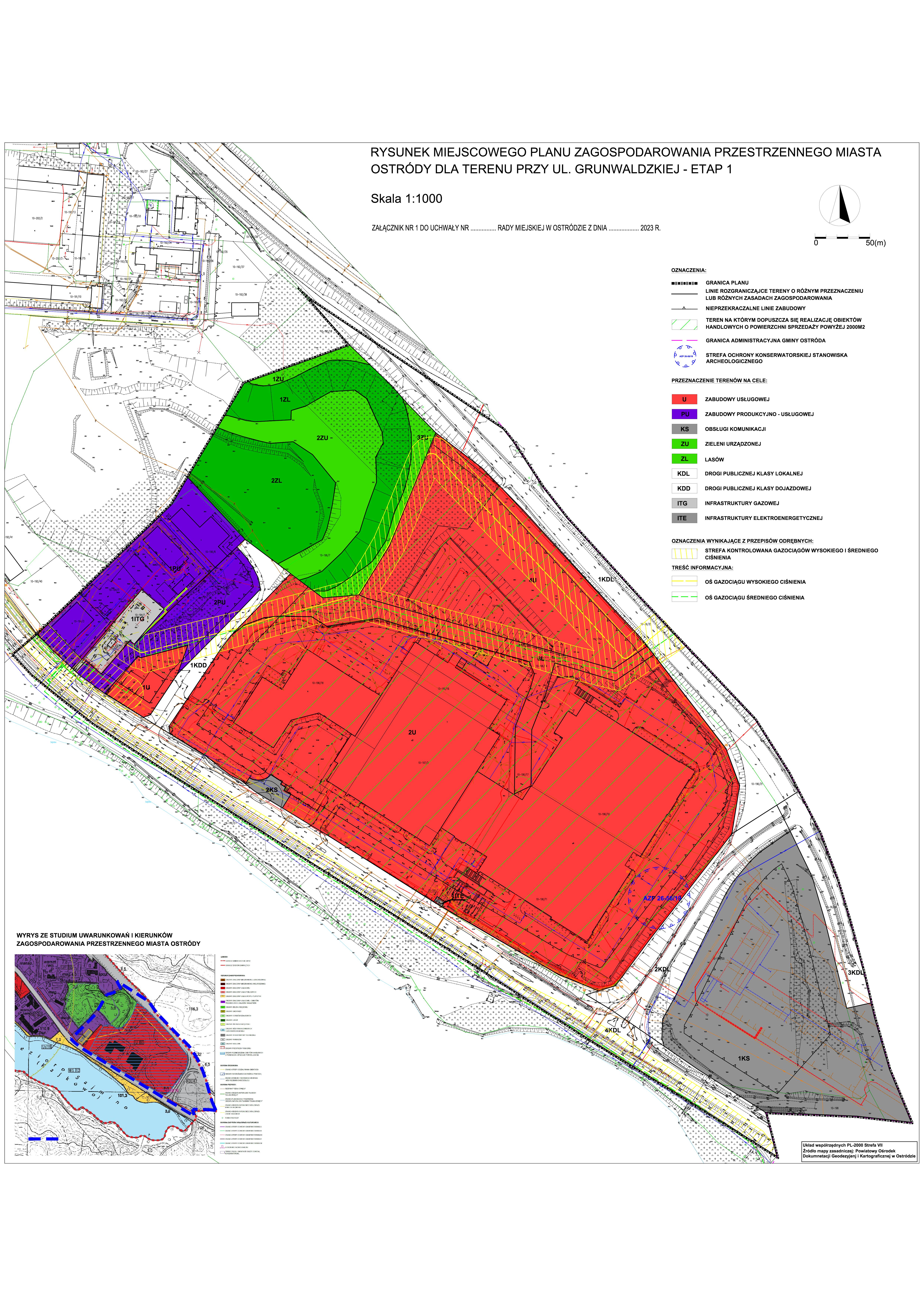
MPZP ul Grunwaldzka - etap 1 [rysunek].pdf
format: image/jpeg , rozmiar: 4.21 MB , data dodania:
26-06-2023 12:30:58
MPZP ul Grunwaldzka - etap 1 [tekst]
format: pdf , rozmiar: 77.64 KB , data dodania:
26-06-2023 12:30:58
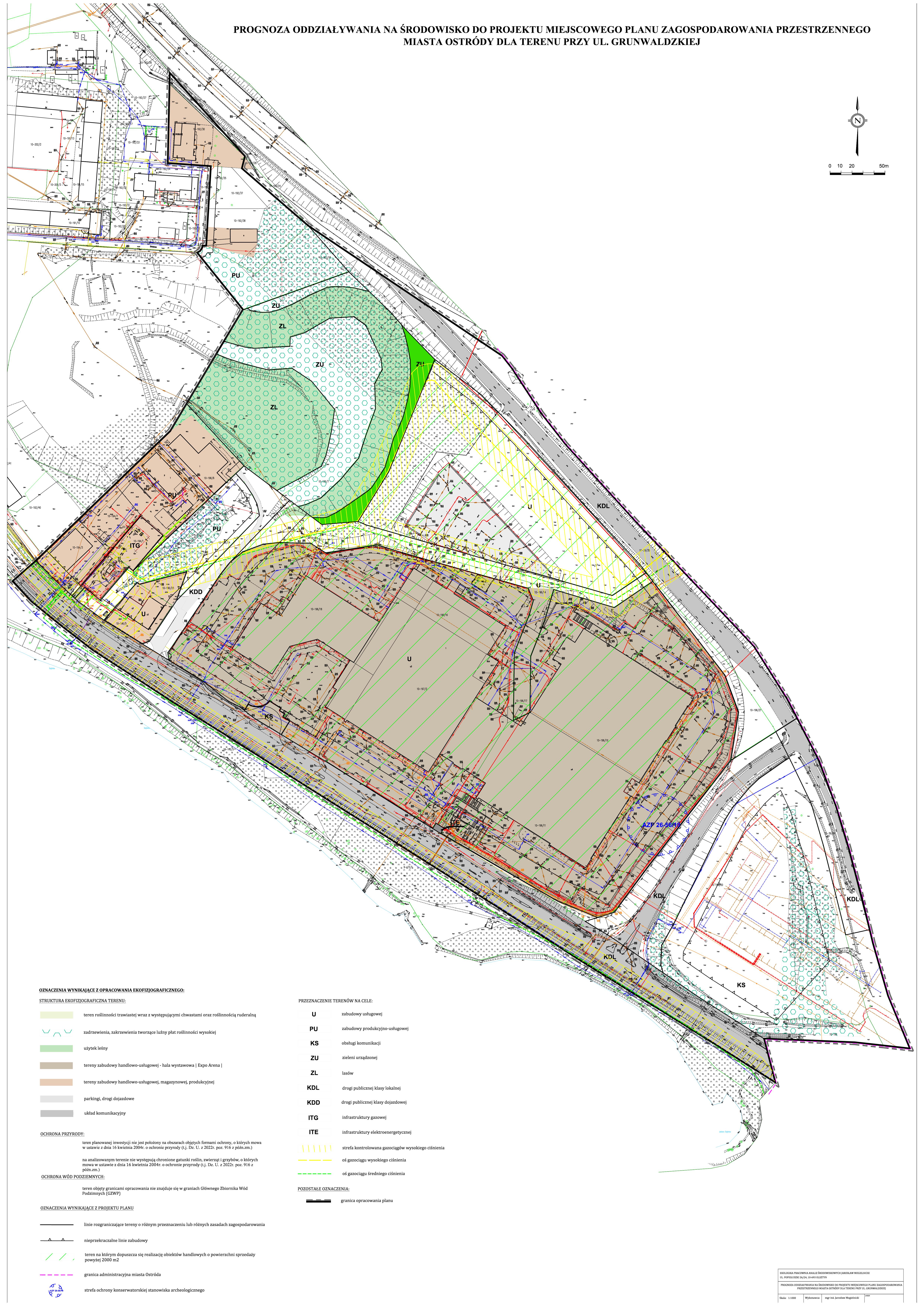
Prognoza oddziaływania na środowisko ul Grunwaldzka [rysunek]
format: image/jpeg , rozmiar: 4.38 MB , data dodania:
26-06-2023 12:30:58
Prognoza oddziaływania na środowisko ul Grunwaldzka [tekst]
format: pdf , rozmiar: 1011.89 KB , data dodania:
26-06-2023 12:30:58
Metryka
Czas publikacji informacji: 15-06-2023 11:40:53
Osoba, która wytworzyła informację: Nowicka Małgorzata
Osoba, która odpowiada za treść: Michalak Zbigniew - Burmistrz Miasta Ostróda
Osoba, która opublikowała informację: Dorota Kubacka
Czas zmiany informacji: 26-06-2023 12:30:58
Osoba, która zmieniła informację: Dorota Kubacka
Liczba wyświetleń informacji: 397
Rejestr zmian
Wersja z dnia 26-06-2023 12:30:58 Wersja z dnia 15-06-2023 11:40:53
Wersja archiwalna
Strona może zawierać nieaktualną treść i załączniki. Możesz pozostać na tej stronie lub przejść na stronę główną.